emilspec
An Integrated Publishing, Inc. Site
eMilSpec
An Integrated Publishing Website
MIL-DTL-16377-40 Fixtures, Lighting; Locks Fluorescent Lamp
Pages
1
-
2
-
3
-
4
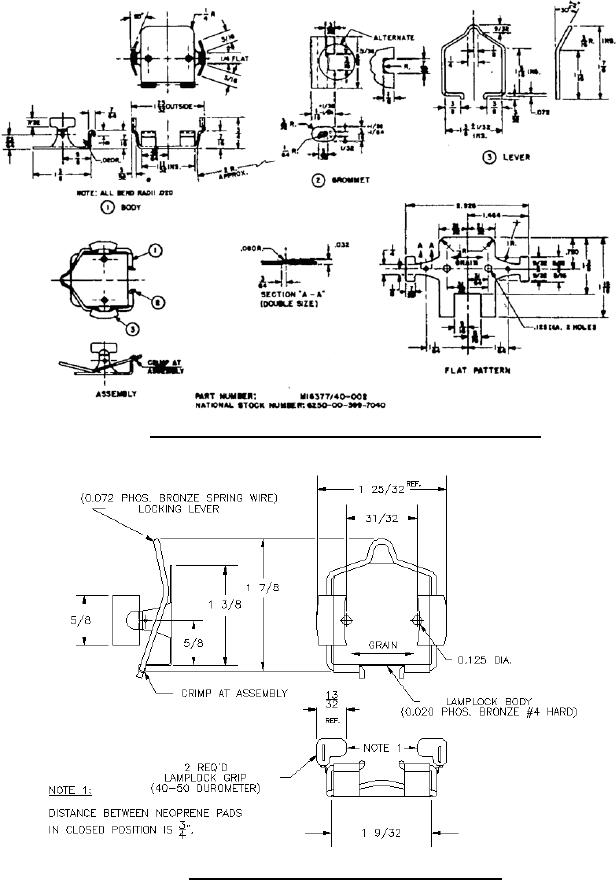
MIL-DTL-16377/40B(SH)
FIGURE 2. Lock assembly for one 15-, 17-,
or 20-watt T12 fluorescent lamp.
FIGURE 3. Lock assembly for one 17-watt
T8 fluorescent lamp.
2